![]() |
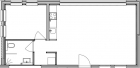
Loft 1 type overigVia de gezamenlijke entree en gang wordt de eigen voordeur bereikt. Deze loft is gelegen op de begane grond in het zijgebouw en beschikt over een ruime woonkamer met een grote raampartij en een open keuken. Daarnaast biedt deze loft een slaapkamer, een eigen badkamer met toilet, wastafel en...
|
![]() |
Loft 4 type AVia de gezamenlijke entree en gang wordt de eigen voordeur bereikt. Deze loft is gelegen op de begane grond van het hoofdgebouw en kenmerkt zich door één grote ruimte die naar eigen inzicht nader ingedeeld kan worden, een open keuken en grote raampartijen. De loft heeft een apart toilet, een eigen badkamer met wastafel en douche en biedt daarnaast een bergruimte met aansluitingen voor... |
![]() |
Loft 5 type AVia de gezamenlijke entree en gang wordt de eigen voordeur bereikt. Deze loft is gelegen op de begane grond van het hoofdgebouw en kenmerkt zich door één grote ruimte die naar eigen inzicht nader ingedeeld kan worden, een open keuken en grote raampartijen. De loft heeft een apart toilet, een eigen badkamer met wastafel en douche en biedt daarnaast een bergruimte met aansluitingen voor... |
![]() |
Loft 6 type AVia de gezamenlijke entree en gang wordt de eigen voordeur bereikt. Deze loft is gelegen op de begane grond van het hoofdgebouw en kenmerkt zich door één grote ruimte die naar eigen inzicht nader ingedeeld kan worden, een open keuken en grote raampartijen. De loft heeft een apart toilet, een eigen badkamer met wastafel en douche en biedt daarnaast een bergruimte met aansluitingen voor... |
![]() |
Loft 7 type AVia de gezamenlijke entree en gang wordt de eigen voordeur bereikt. Deze loft is gelegen op de begane grond van het hoofdgebouw en kenmerkt zich door één grote ruimte die naar eigen inzicht nader ingedeeld kan worden, een open keuken en grote raampartijen. De loft heeft een apart toilet, een eigen badkamer met wastafel en douche en biedt daarnaast een bergruimte met aansluitingen voor... |
![]() |
Loft 8 type AVia de gezamenlijke entree en gang wordt de eigen voordeur bereikt. Deze loft is gelegen op de begane grond van het hoofdgebouw en kenmerkt zich door één grote ruimte die naar eigen inzicht nader ingedeeld kan worden, een open keuken en grote raampartijen. De loft heeft een apart toilet, een eigen badkamer met wastafel en douche en biedt daarnaast een bergruimte met aansluitingen voor... |
![]() |
Loft 9 type AVia de gezamenlijke entree en gang wordt de eigen voordeur bereikt. Deze loft is gelegen op de begane grond van het hoofdgebouw en kenmerkt zich door één grote ruimte die naar eigen inzicht nader ingedeeld kan worden, een open keuken en grote raampartijen. De loft heeft een apart toilet, een eigen badkamer met wastafel en douche en biedt daarnaast een bergruimte met aansluitingen voor... |
![]() |
Loft 10 type overig 2Via de gezamenlijke entree en gang wordt de eigen voordeur bereikt. Deze loft is gelegen op de begane grond van de laagbouw en kenmerkt zich door een speelse indeling. Deze loft beschikt over een ruime woonkamer en een open keuken. Daarnaast biedt deze loft een slaapkamer, een eigen badkamer met toilet, wastafel en douche en een bergruimte met aansluitingen voor wasapparatuur. ... |
![]() |
Loft 11 type overig 3Via de gezamenlijke entree en gang wordt de eigen voordeur bereikt. Deze loft is gelegen op de begane grond en beschikt over een ruime woonkamer met een grote raampartij en een open keuken. Daarnaast biedt deze loft een slaapkamer, een eigen badkamer met toilet, wastafel en douche en een bergruimte met aansluitingen voor wasapparatuur.
Deze loft beschikt over... |